OurHouse
JP / EN

土地購入情報

「安平町早来栄町138番[参考プランあります!]」

安平町早来栄町の売土地

価格

220 万円

土地面積
190.78㎡ (57.71坪) 
所在地
勇払郡安平町早来栄町138番85、8、9
交通
  • JR早来駅まで  徒歩12分(950m)
  • 道南バス「さつき団地前」停留所まで徒歩8分(600m)
土地権利
所有権

情報登録日 2026/02/11

はやきた子ども園、安平町立早来学園まで徒歩24分の学区内。
子育てに適した環境です。
敷地図
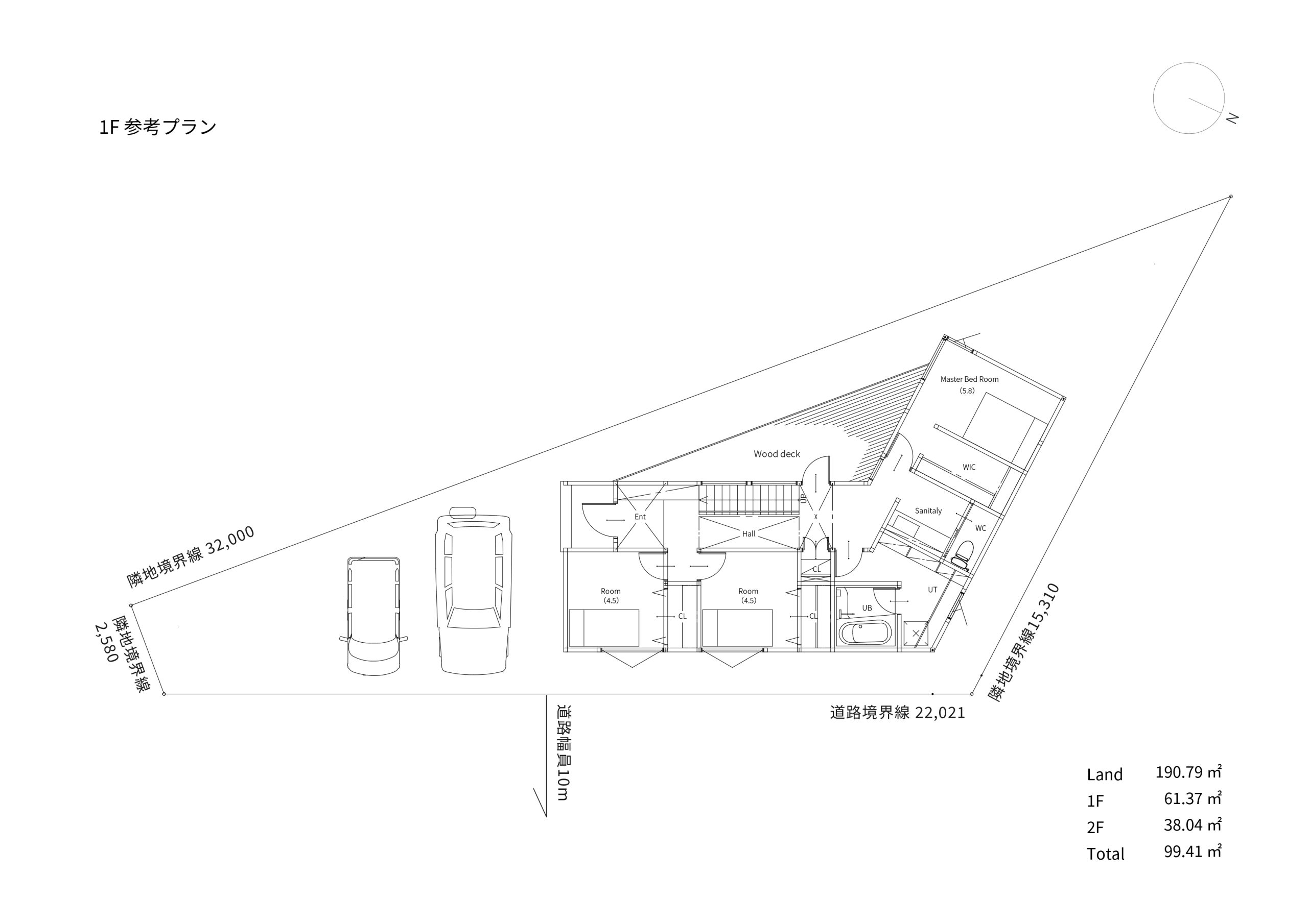
参考プラン1F平面図
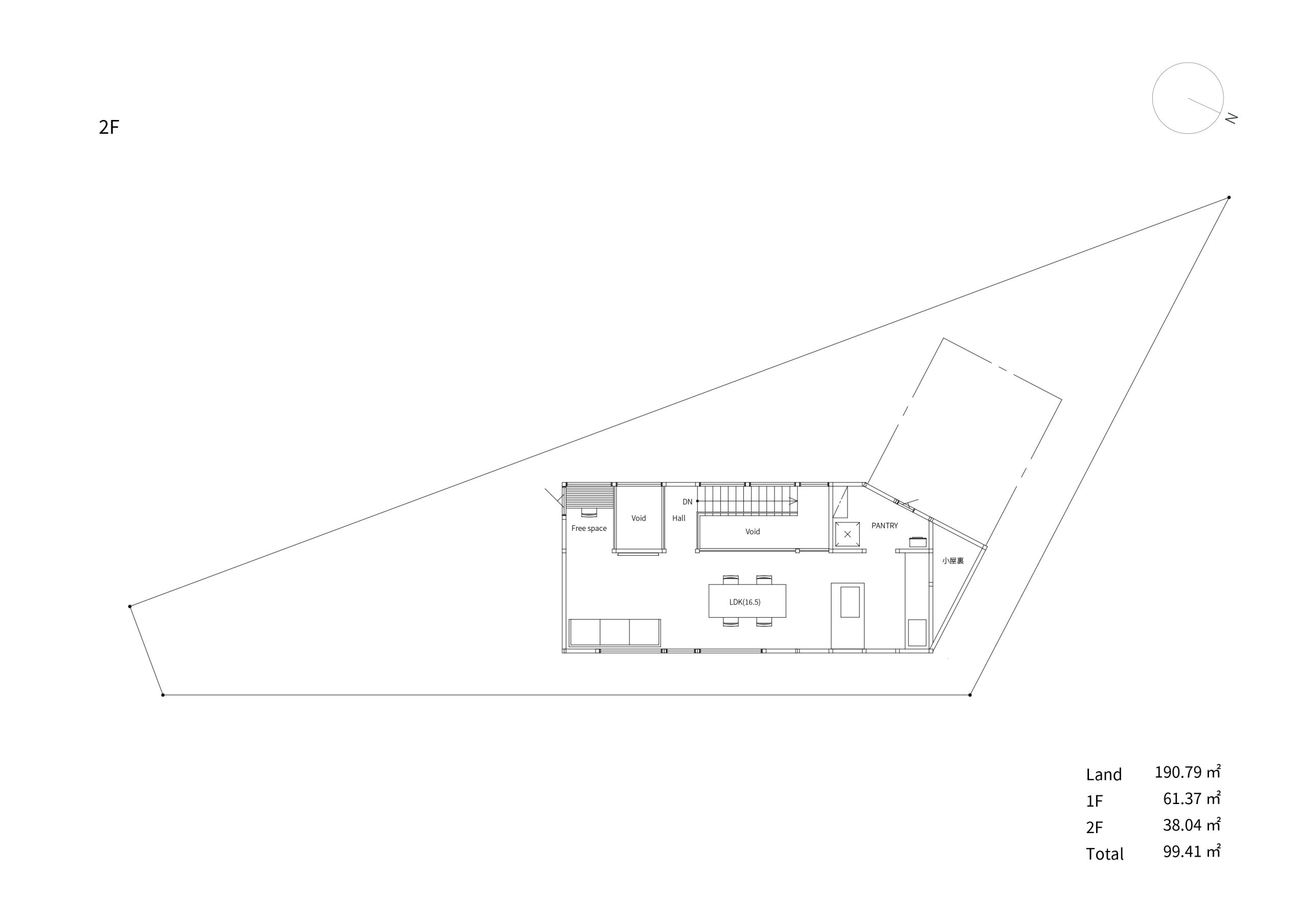
参考プラン2F平面図<br /> ロケーションの良い土地の2Fリビングプラン
参考プランの立面図
JR早来駅まで  徒歩12分(950m)
はやきた子ども園まで 徒歩24分(1.9km)
サツドラ安平早来店まで 徒歩18分(1.4km)
ニコット早来まで 徒歩24分(1.9km)
安平町立早来学園まで 徒歩24分(1.9km)

見学予約・お問い合わせ

お問い合わせや、見学をご予約いただけます。

※見学ご希望日時は、予約送信するだけでは日時確定となりませんのでご注意ください。
※追って、担当よりご予約確定のご連絡を差し上げます。

見学またはお問い合わせ物件
見学ご希望日時

※仮予約となります。弊社担当からのご連絡後、ご予約日時確定となります。 ※2日前~当日のご予約はお電話のみの受付となります。

 

お名前
フリガナ
メールアドレス

 

電話番号
お問い合わせやご不明点など、お気軽にご記入ください。
個人情報保護方針
 
物件概要・詳細
名称
安平町早来栄町138番[参考プランあります!]
用途地域
第1種低層住居専用地域
私道負担
なし
接道状況
東側道路 幅10m・接面22.021m
建ぺい率 /
容積率
40% / 60%
都市計画
市街化区域
地目
宅地
地勢
平坦
セット
パック
不要
建築条件
あり
取引態様
売主
設備
電気、上水道・下水道、プロパンガス

※この土地は土地売買契約後3ヶ月以内に、株式会社アワハウスと建物の建築請負契約を締結することを条件に販売します。この期間内に建築請負契約を締結されなかった場合は、土地売買契約は白紙となり、受領した手付金等の土地代金は全てお返しします。

周辺環境
学区
  • 安平町立早来学園まで 徒歩24分(1.9km)
  • はやきた子ども園まで 徒歩24分(1.9km)
その他施設
  • ニコット早来まで 徒歩24分(1.9km)
  • サツドラ安平早来店まで 徒歩18分(1.4km)
  • ENEOS Dr.Drive早来SSまで 徒歩8分・車2分(600m)
お問い合わせ先

株式会社アワハウス 千歳支店
〒066-0083 千歳市みどり台北5丁目1番1号

0123-40-8686

北海道知事オホ(5)第336号
(公社)北海道宅地建物取引業協会会員
(一社)北海道不動産公正取引協議会加盟

ご見学予約

Check!
モデルハウスに
行ってみる
無料カタログを
取り寄せる